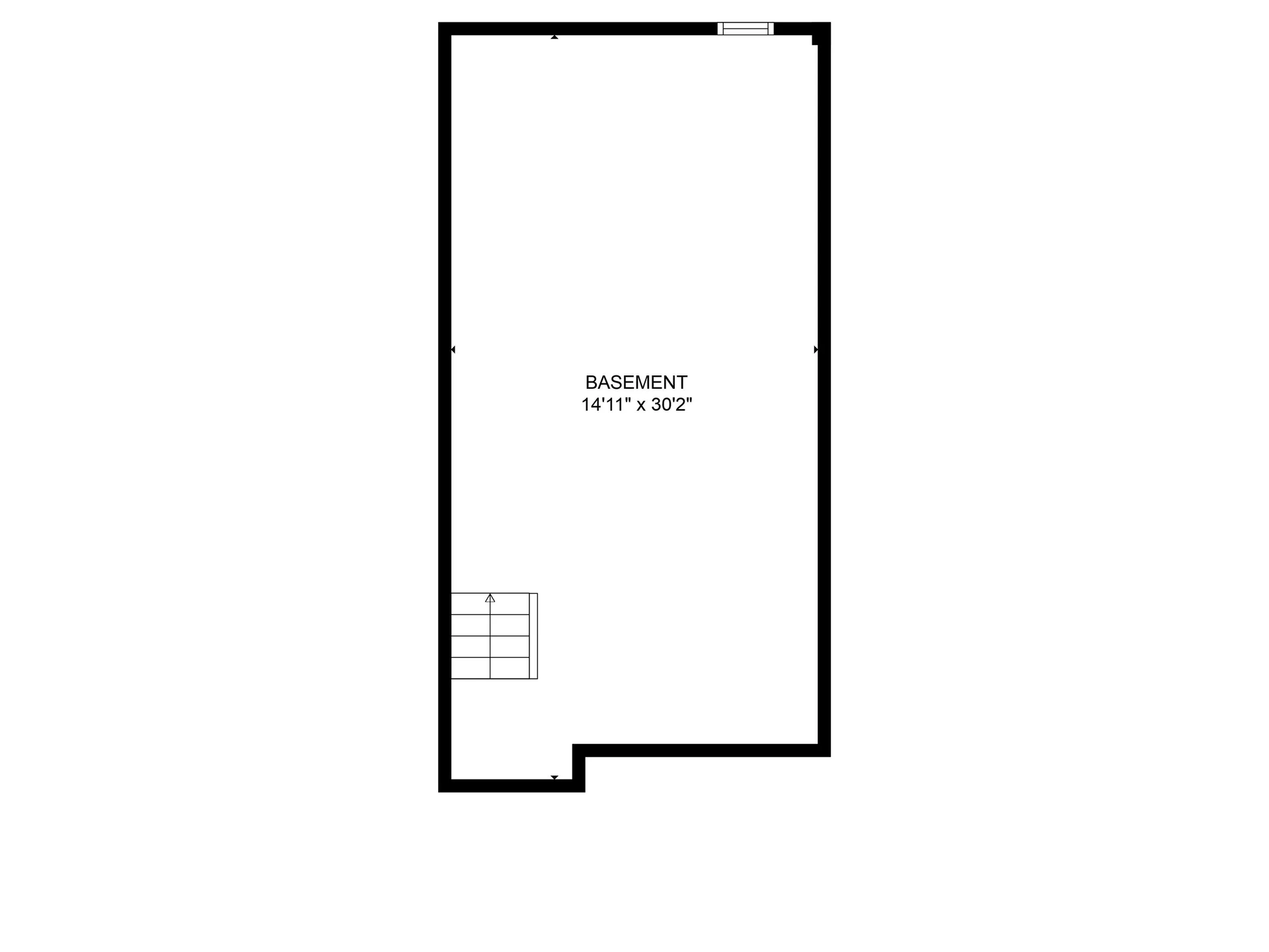
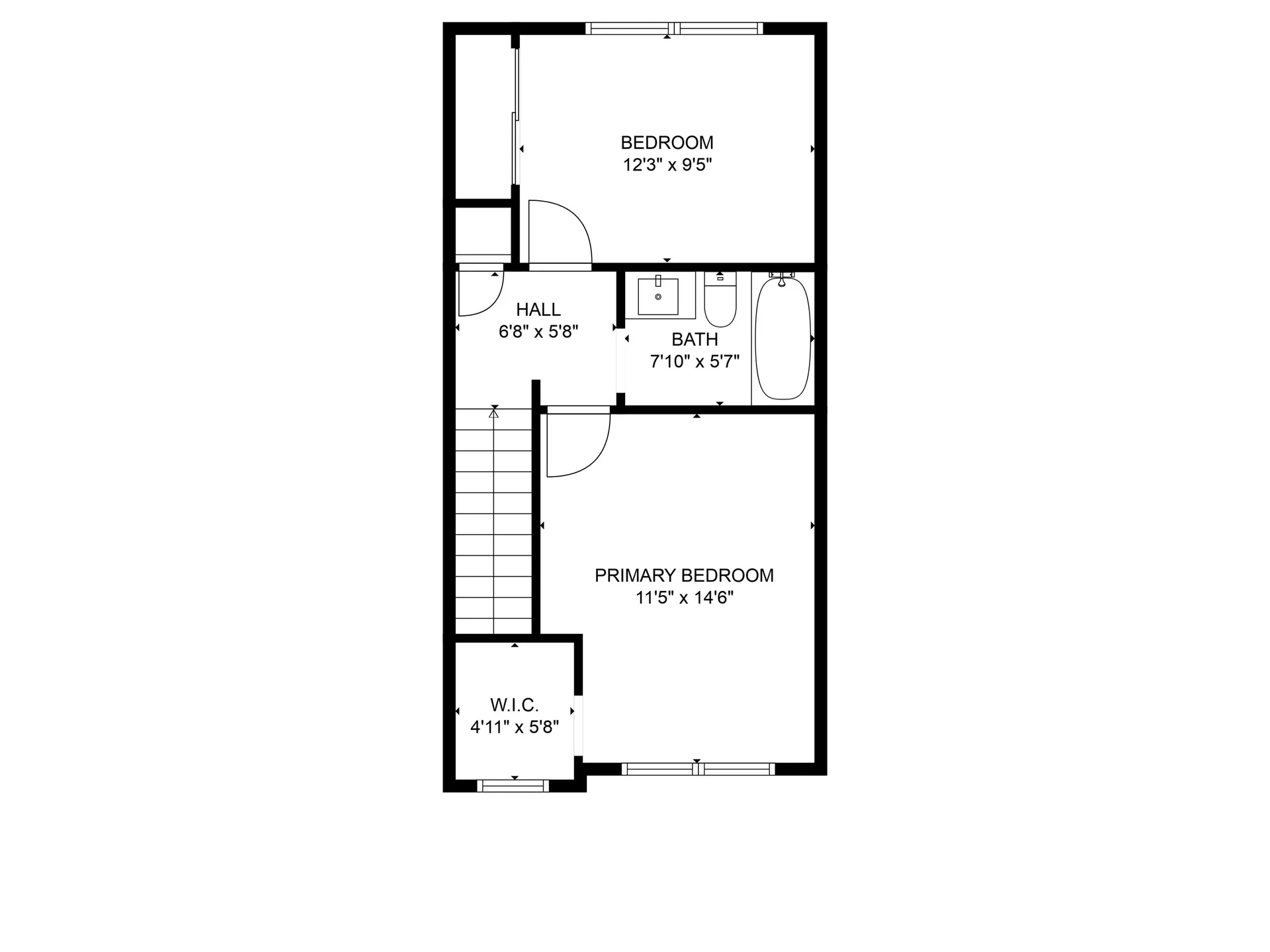
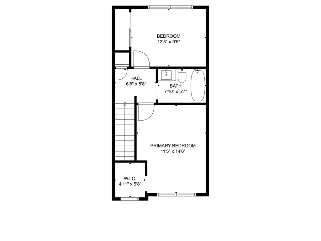
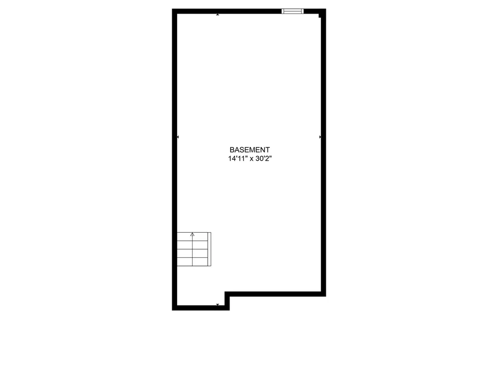
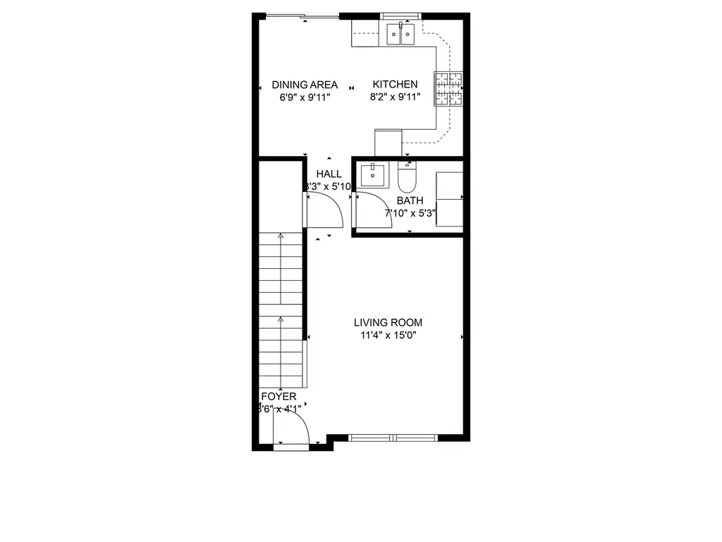
Back on Market due to buyer finances, unrelated to property THOUGHTFULLY REFRESHED AND MOVE-IN READY TOWNHOME! A SMART INVESTMENT OR PERFECT FOR A FIRST BUYER! Fresh from a complete renovation this condominium delivers style and comfort in an excellent location close to shopping, dining and major roadways for easy commuting. A charming lamppost and shade tree welcome you to enter soothing interiors where wide-plank luxury vinyl flooring flows throughout. Bask in the sun in the spacious living room where you'll relax with guests as you glimpse changing foliage through dual windows. Make your way to the eat-in kitchen to grab snacks as you admire cherry cabinetry, stylish glass tile backsplash and crisp white appliances. Grab a beverage and gaze through large glass sliders that frame lovely wooded views. Slip outside to enjoy golden hour in the shared backyard as you greet neighbors. Head to nearby Wolfe Park for a ballgame or enjoy the basketball courts and playground for little ones. As you stroll back, stop for ice cream then return home to unwind. Upstairs, the primary offers a daylit walk-in closet that easily organizes your wardrobe and a second sizable bedroom promises comfort for overnight guests. First floor laundry is convenient and a large unfinished basement offers abundant storage with potential for even more living space. With landscaping, snow and trash removal handled for you in this well-managed community, you'll love maintenance-free living close to it all!

Listing Tools

Property Details of 49 Harvell Street, Unit 9

Listed by Fine Homes Group International of Keller Williams Realty-Metropolitan

Map Location

Driving Directions

Broker Reciprocity 

Copyright 2025 PrimeMLS, Inc. All rights reserved. This information is deemed reliable, but not guaranteed. The data relating to real estate displayed on this display comes in part from the IDX Program of PrimeMLS. The information being provided is for consumers’ personal, non-commercial use and may not be used for any purpose other than to identify prospective properties consumers may be interested in purchasing. Data last updated November 15, 2025 12:24 PM EST

 

Hi there! How can we help you?

Contact us using the form below or give us a call.

Send Us A Message:

I agree to receive marketing and customer service calls and text messages from Proctor & Greene Real Estate. To opt out, you can reply 'stop' at any time or click the unsubscribe link in the emails. Consent is not a condition of purchase. Msg/data rates may apply. Msg frequency varies. Privacy Policy.

Do not fill in this field:

This site is protected by reCAPTCHA and the Google Privacy Policy and Terms of Service apply.

Hi there! How can we help you?

Contact us using the form below or give us a call.

Send Us A Message:

Do not fill in this field:

This site is protected by reCAPTCHA and the Google Privacy Policy and Terms of Service apply.

Hi there! How can we help you?

Contact us using the form below or give us a call.

Send Us A Message:

Do not fill in this field:

This site is protected by reCAPTCHA and the Google Privacy Policy and Terms of Service apply.

Do not fill in this field:

This site is protected by reCAPTCHA and the Google Privacy Policy and Terms of Service apply.

Do not fill in this field:

This site is protected by reCAPTCHA and the Google Privacy Policy and Terms of Service apply.

Do not fill in this field:

This site is protected by reCAPTCHA and the Google Privacy Policy and Terms of Service apply.

$

Do not fill in this field:

This site is protected by reCAPTCHA and the Google Privacy Policy and Terms of Service apply.