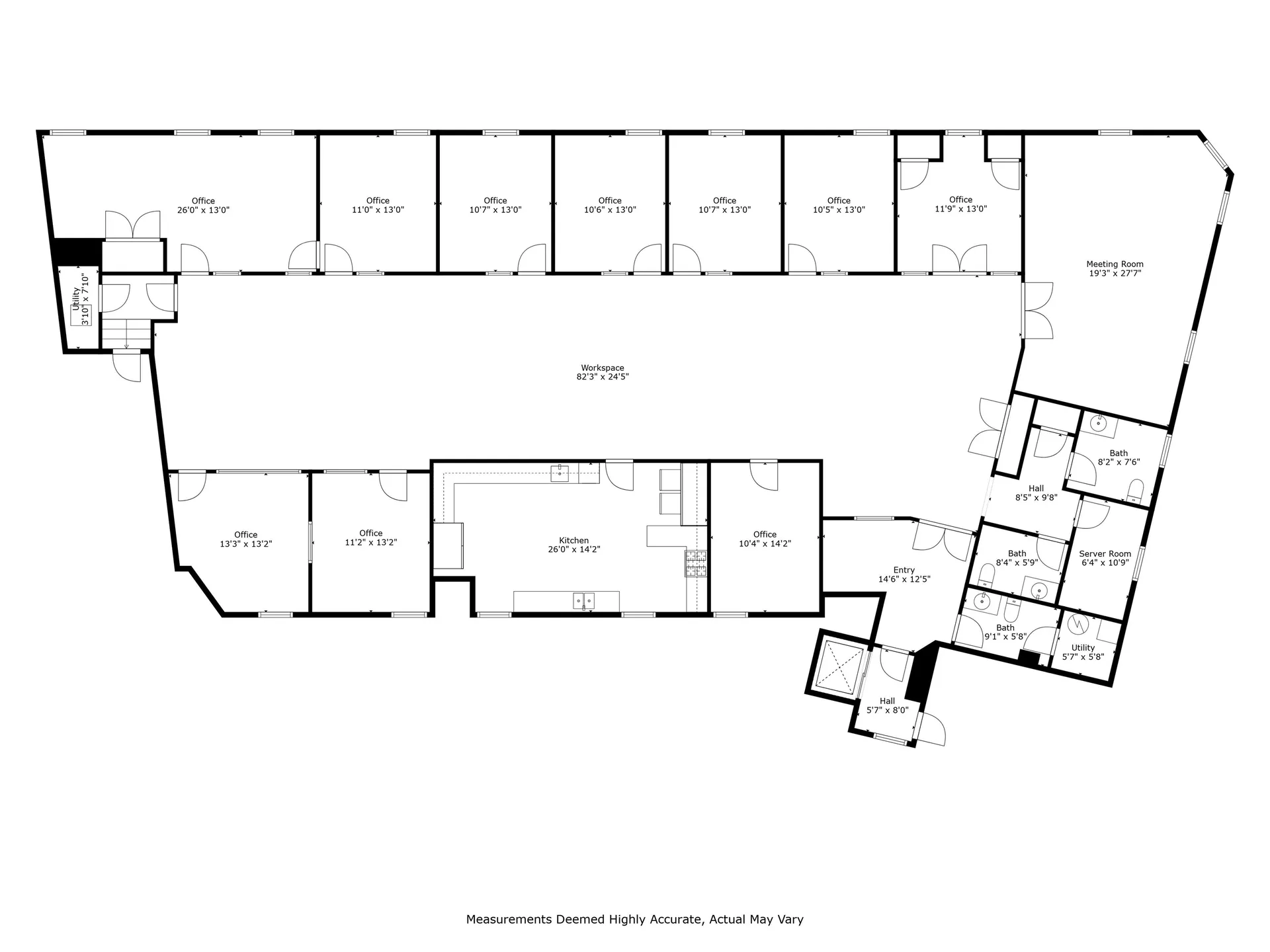
Motivated Seller! An extraordinary opportunity awaits in one of Portsmouth’s most coveted locations! Currently configured as a luxury commercial office space, this expansive 4,600± sq.ft. third-floor condominium offers the rare potential to be transformed into a stunning residential unit in the vibrant downtown core! Positioned between Market Street and Congress Street, this historic 1860 building has been meticulously restored inside and out, preserving timeless character while offering modern convenience. Direct elevator access brings you into a sun-filled open layout framed by oversized windows on nearly every side, flooding the space with natural light and city views. With soaring ceilings, flexible floor plan, the possibilities are endless design a grand single residence with a multi-bedroom layout and spacious living and entertaining areas. A standout feature is the professional-grade kitchen, which could be reimagined into a stunning culinary centerpiece for gatherings at home. Step outside and you’re just moments from Portsmouth’s award-winning restaurants, cafs, boutiques, galleries and waterfront. With the municipal parking garage conveniently across the street, this residence blends urban lifestyle and everyday practicality. This is a one-of-a-kind opportunity to reimagine a historic space bring your vision and create your dream home in downtown Portsmouth. Buyers to do their own due diligence with the town regarding conversion from commercial to residential use.

Listing Tools

Property Details of 20 Ladd Street, Unit K

Listed by Meaghan DeFreze of KW Coastal and Lakes & Mountains Realty

Map Location

Driving Directions

Broker Reciprocity 

Copyright 2025 PrimeMLS, Inc. All rights reserved. This information is deemed reliable, but not guaranteed. The data relating to real estate displayed on this display comes in part from the IDX Program of PrimeMLS. The information being provided is for consumers’ personal, non-commercial use and may not be used for any purpose other than to identify prospective properties consumers may be interested in purchasing. Data last updated November 15, 2025 1:54 PM EST

 

Hi there! How can we help you?

Contact us using the form below or give us a call.

Send Us A Message:

I agree to receive marketing and customer service calls and text messages from Proctor & Greene Real Estate. To opt out, you can reply 'stop' at any time or click the unsubscribe link in the emails. Consent is not a condition of purchase. Msg/data rates may apply. Msg frequency varies. Privacy Policy.

Do not fill in this field:

This site is protected by reCAPTCHA and the Google Privacy Policy and Terms of Service apply.

Hi there! How can we help you?

Contact us using the form below or give us a call.

Send Us A Message:

Do not fill in this field:

This site is protected by reCAPTCHA and the Google Privacy Policy and Terms of Service apply.

Hi there! How can we help you?

Contact us using the form below or give us a call.

Send Us A Message:

Do not fill in this field:

This site is protected by reCAPTCHA and the Google Privacy Policy and Terms of Service apply.

Do not fill in this field:

This site is protected by reCAPTCHA and the Google Privacy Policy and Terms of Service apply.

Do not fill in this field:

This site is protected by reCAPTCHA and the Google Privacy Policy and Terms of Service apply.

Do not fill in this field:

This site is protected by reCAPTCHA and the Google Privacy Policy and Terms of Service apply.

$

Do not fill in this field:

This site is protected by reCAPTCHA and the Google Privacy Policy and Terms of Service apply.