This isn't another house; it's an unscripted life atop a private knoll. You asked for **views, land, privacy**, and a home that defies the predictable-here it is. Perfectly settled on over SIX+ ACRES, this massive, light-filled post and beam structure is surrounded by pollinator gardens, hay fields, and a perfect sledding hill, all granting a SWEEPING PANORAMIC VIEWS of farm life and West Jaffrey. The architecture is deliberate: a PASSIVE SOLAR ENVELOPE SYSTEM means sunlight pours in, naturally warming the interior and promoting efficiency. Originally designed for a medical practice and an upstairs residence, its sheer volume and dual-level utility scream potential. Dreaming of a HOMESTEAD, a secluded work-from-home base, a multi-generational setup, or a business location? The possibilities are boundless (zoning approvals needed for use change). LIGHT is a constant feature, especially in the open-concept kitchen and living area. Recent upgrades include a tightened and painted metal roof and numerous replaced solar windows. Inside, you'll find solid wood doors, natural woodwork, an attached garage, and an abundance of rooms ready for your creative re-imagining. This home is ready for your aesthetic update, but its core assets-its size, its unique design, its land, and its unrivaled possibilities-are waiting to become your next chapter. Don't buy a house; claim a haven. Open House Saturday Oct 25 2 to 4

Listing Tools

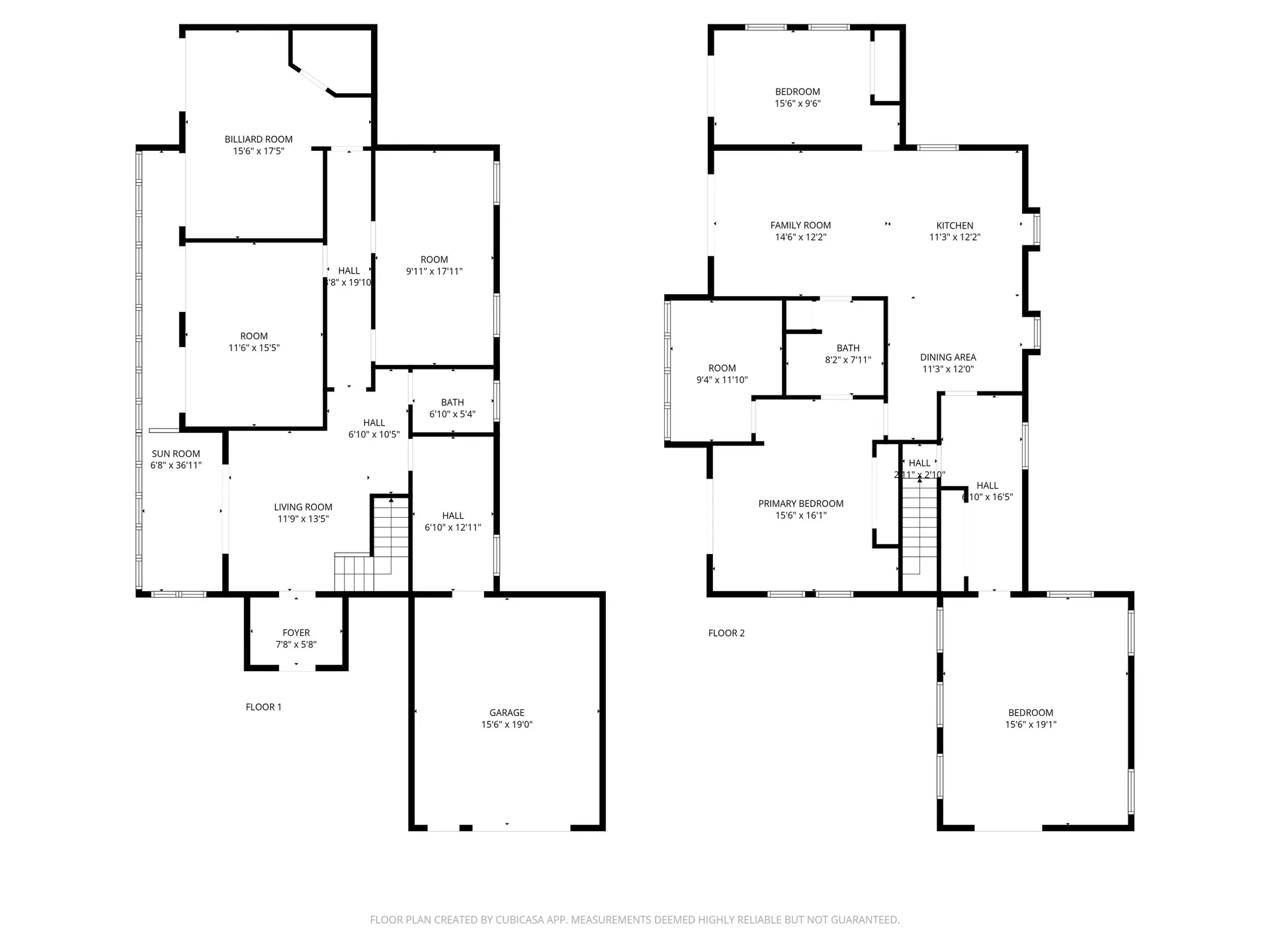
Property Details of 121 Overview Drive

Listed by Lisa Stone of Keller Williams Realty Metro-Keene

Map Location

Driving Directions

Broker Reciprocity 

Copyright 2025 PrimeMLS, Inc. All rights reserved. This information is deemed reliable, but not guaranteed. The data relating to real estate displayed on this display comes in part from the IDX Program of PrimeMLS. The information being provided is for consumers’ personal, non-commercial use and may not be used for any purpose other than to identify prospective properties consumers may be interested in purchasing. Data last updated November 10, 2025 5:23 PM EST

 

Hi there! How can we help you?

Contact us using the form below or give us a call.

Send Us A Message:

I agree to receive marketing and customer service calls and text messages from Proctor & Greene Real Estate. To opt out, you can reply 'stop' at any time or click the unsubscribe link in the emails. Consent is not a condition of purchase. Msg/data rates may apply. Msg frequency varies. Privacy Policy.

Do not fill in this field:

This site is protected by reCAPTCHA and the Google Privacy Policy and Terms of Service apply.

Hi there! How can we help you?

Contact us using the form below or give us a call.

Send Us A Message:

Do not fill in this field:

This site is protected by reCAPTCHA and the Google Privacy Policy and Terms of Service apply.

Hi there! How can we help you?

Contact us using the form below or give us a call.

Send Us A Message:

Do not fill in this field:

This site is protected by reCAPTCHA and the Google Privacy Policy and Terms of Service apply.

Do not fill in this field:

This site is protected by reCAPTCHA and the Google Privacy Policy and Terms of Service apply.

Do not fill in this field:

This site is protected by reCAPTCHA and the Google Privacy Policy and Terms of Service apply.

Do not fill in this field:

This site is protected by reCAPTCHA and the Google Privacy Policy and Terms of Service apply.

$

Do not fill in this field:

This site is protected by reCAPTCHA and the Google Privacy Policy and Terms of Service apply.