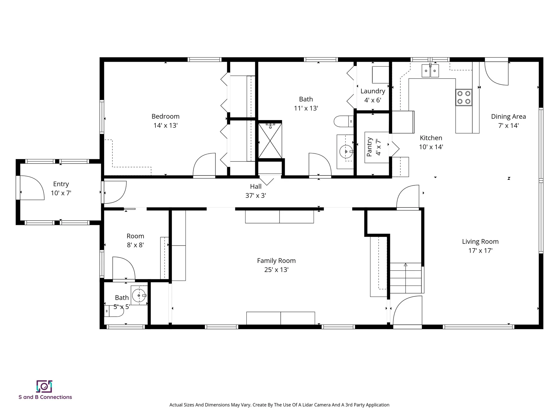
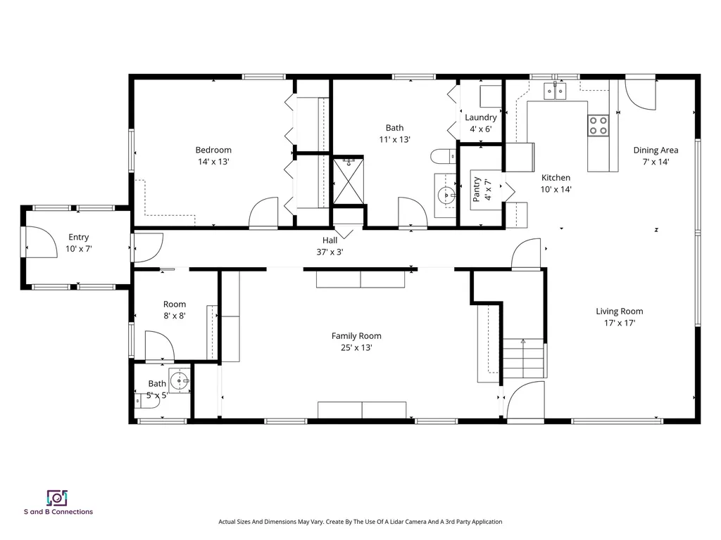
Welcome to 120 Deering Center Road - 3 separate lots totaling an extraordinary +/- 79 acres in desirable Deering, NH with breathtaking mountain views! These properties offer unmatched privacy, charm,& opportunity. These picturesque lots feature not only views, but open land, rolling fields, established roads/paths, forest,& plenty of natural beauty! This spacious home is situated on +/- 72 acres & has unlimited potential! Walk in, kick off your shoes & you will feel right at home. The main level boasts an open floor plan/plenty of natural light, as well as 1 bedroom, ½ bath, 1 large bonus room (could be broken up into 2 rooms), & a ¾ bath w/ laundry. Enjoy cozying up & sipping coffee in the living room while looking out the windows at the expansive views! Some updating and minor TLC may be needed, but can be done over time. Upstairs is currently unfinished, but can be finished off into whatever your heart desires! Outside you will find 2 detached 2 car garages & an open front pole barn located on the house lot. Abutting the house lot, are two smaller lots, one totaling 2.30 ac & the other is +/- 2.07 ac. There is an additional +/- 2.56 referenced as “proposed town road” on the maps. The house lot offers subdivision potential (with proper approvals). Conveniently located 30 mins to Concord, 45 to Manchester,& 35 to Keene.This property is located only mins away from the center of Hillsborough where you can enjoy restaurants, shops,&more! Schedule your private showing today!

Listing Tools

Property Details of 120 Deering Center Road

Listed by Abby Fino of East Key Realty (Cell: 603-504-5399)

Map Location

Driving Directions

Broker Reciprocity 

Copyright 2025 PrimeMLS, Inc. All rights reserved. This information is deemed reliable, but not guaranteed. The data relating to real estate displayed on this display comes in part from the IDX Program of PrimeMLS. The information being provided is for consumers’ personal, non-commercial use and may not be used for any purpose other than to identify prospective properties consumers may be interested in purchasing. Data last updated November 10, 2025 6:23 PM EST

 

Hi there! How can we help you?

Contact us using the form below or give us a call.

Send Us A Message:

I agree to receive marketing and customer service calls and text messages from Proctor & Greene Real Estate. To opt out, you can reply 'stop' at any time or click the unsubscribe link in the emails. Consent is not a condition of purchase. Msg/data rates may apply. Msg frequency varies. Privacy Policy.

Do not fill in this field:

This site is protected by reCAPTCHA and the Google Privacy Policy and Terms of Service apply.

Hi there! How can we help you?

Contact us using the form below or give us a call.

Send Us A Message:

Do not fill in this field:

This site is protected by reCAPTCHA and the Google Privacy Policy and Terms of Service apply.

Hi there! How can we help you?

Contact us using the form below or give us a call.

Send Us A Message:

Do not fill in this field:

This site is protected by reCAPTCHA and the Google Privacy Policy and Terms of Service apply.

Do not fill in this field:

This site is protected by reCAPTCHA and the Google Privacy Policy and Terms of Service apply.

Do not fill in this field:

This site is protected by reCAPTCHA and the Google Privacy Policy and Terms of Service apply.

Do not fill in this field:

This site is protected by reCAPTCHA and the Google Privacy Policy and Terms of Service apply.

$

Do not fill in this field:

This site is protected by reCAPTCHA and the Google Privacy Policy and Terms of Service apply.