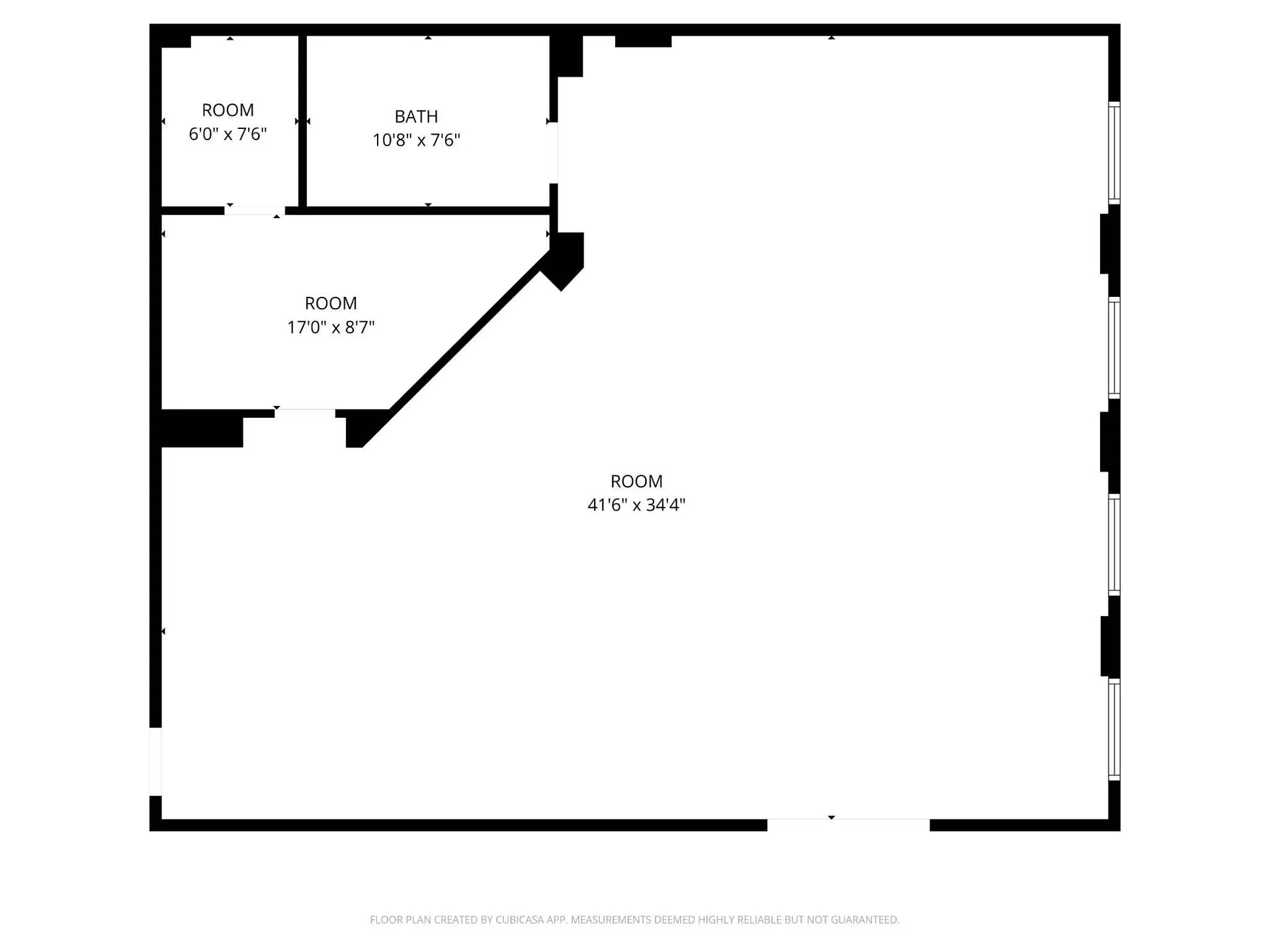
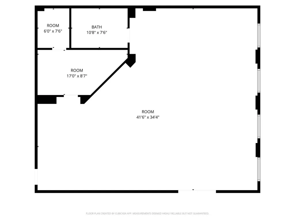
Versatile commercial space available for lease, Approx. 1,700sqft in total, the space offers a large open floor plan ideal for a variety of business uses. Previously utilized as a martial arts studio, the space lends itself well to fitness, wellness, creative studios, workshop-style businesses, or other open-concept operations. Upon entry, you're welcomed into a spacious main room with high ceilings and character-rich details, including exposed brick and industrial-style lighting. Toward the rear of the space, there is a dedicated office area, utility/storage room, and a bathroom, providing functional separation and storage. An additional bonus is extra storage space accessible via a drop-down staircase, located above the office/utility area, perfect for inventory, equipment, or seasonal storage. This adaptable space is an excellent opportunity for a business looking to establish or expand in the Milford area along a highly visible road right off of rt 101.

Listing Tools

Property Details of 37 Wilton Road

Property Details

Listed by Katrice Jalbert of Sopris

Map Location

Driving Directions

Broker Reciprocity 

Copyright 2026 PrimeMLS, Inc. All rights reserved. This information is deemed reliable, but not guaranteed. The data relating to real estate displayed on this display comes in part from the IDX Program of PrimeMLS. The information being provided is for consumers’ personal, non-commercial use and may not be used for any purpose other than to identify prospective properties consumers may be interested in purchasing. Data last updated February 6, 2026 7:38 PM EST

 

Hi there! How can we help you?

Contact us using the form below or give us a call.

Send Us A Message:

I agree to receive marketing and customer service calls and text messages from Proctor & Greene Real Estate. To opt out, you can reply 'stop' at any time or click the unsubscribe link in the emails. Consent is not a condition of purchase. Msg/data rates may apply. Msg frequency varies. Privacy Policy.

Do not fill in this field:

This site is protected by reCAPTCHA and the Google Privacy Policy and Terms of Service apply.

Hi there! How can we help you?

Contact us using the form below or give us a call.

Send Us A Message:

Do not fill in this field:

This site is protected by reCAPTCHA and the Google Privacy Policy and Terms of Service apply.

Hi there! How can we help you?

Contact us using the form below or give us a call.

Send Us A Message:

Do not fill in this field:

This site is protected by reCAPTCHA and the Google Privacy Policy and Terms of Service apply.

Do not fill in this field:

This site is protected by reCAPTCHA and the Google Privacy Policy and Terms of Service apply.

Do not fill in this field:

This site is protected by reCAPTCHA and the Google Privacy Policy and Terms of Service apply.

Do not fill in this field:

This site is protected by reCAPTCHA and the Google Privacy Policy and Terms of Service apply.

$

Do not fill in this field:

This site is protected by reCAPTCHA and the Google Privacy Policy and Terms of Service apply.