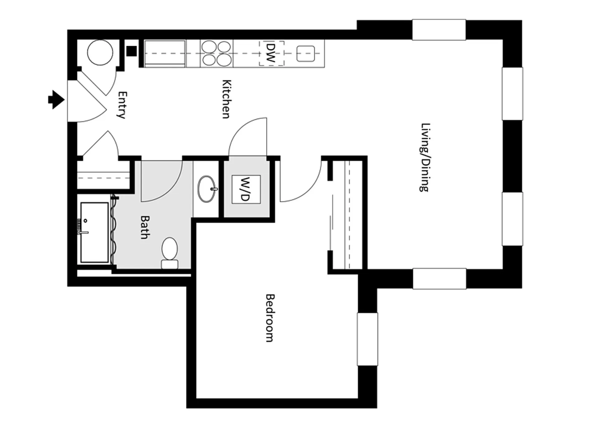
Fresh Vibes Coming Soon! Discover the unique blend of modern comforts and rustic charm that sets Hanger Mill apart. Nestled on a historical site, This one bed, one bath Chai III style floorplan is an open concept loft style apartment with modern finishes with unique features, such as high ceilings, exposed beams, and large windows, providing a warm and inviting place. Our community seamlessly blends old mill charm with a modern and unique design. Hanger Mill, a carefully restored red brick mill building, offers an exceptional living experience for those who appreciate historic character and urban excitement. Conveniently situated just a mile from Nashua's vibrant downtown, Hanger Mill is your future home! Ready for your December move-in, reach out today to schedule your tour! **Some photos may be virtually staged.

Listing Tools

Property Details of 110 East Hollis Street, Unit 325

Listed by Tristan St. Martin of StreamLine Communities

Map Location

Driving Directions

Broker Reciprocity 

Copyright 2025 PrimeMLS, Inc. All rights reserved. This information is deemed reliable, but not guaranteed. The data relating to real estate displayed on this display comes in part from the IDX Program of PrimeMLS. The information being provided is for consumers’ personal, non-commercial use and may not be used for any purpose other than to identify prospective properties consumers may be interested in purchasing. Data last updated November 11, 2025 12:22 AM EST

 

Hi there! How can we help you?

Contact us using the form below or give us a call.

Send Us A Message:

I agree to receive marketing and customer service calls and text messages from Proctor & Greene Real Estate. To opt out, you can reply 'stop' at any time or click the unsubscribe link in the emails. Consent is not a condition of purchase. Msg/data rates may apply. Msg frequency varies. Privacy Policy.

Do not fill in this field:

This site is protected by reCAPTCHA and the Google Privacy Policy and Terms of Service apply.