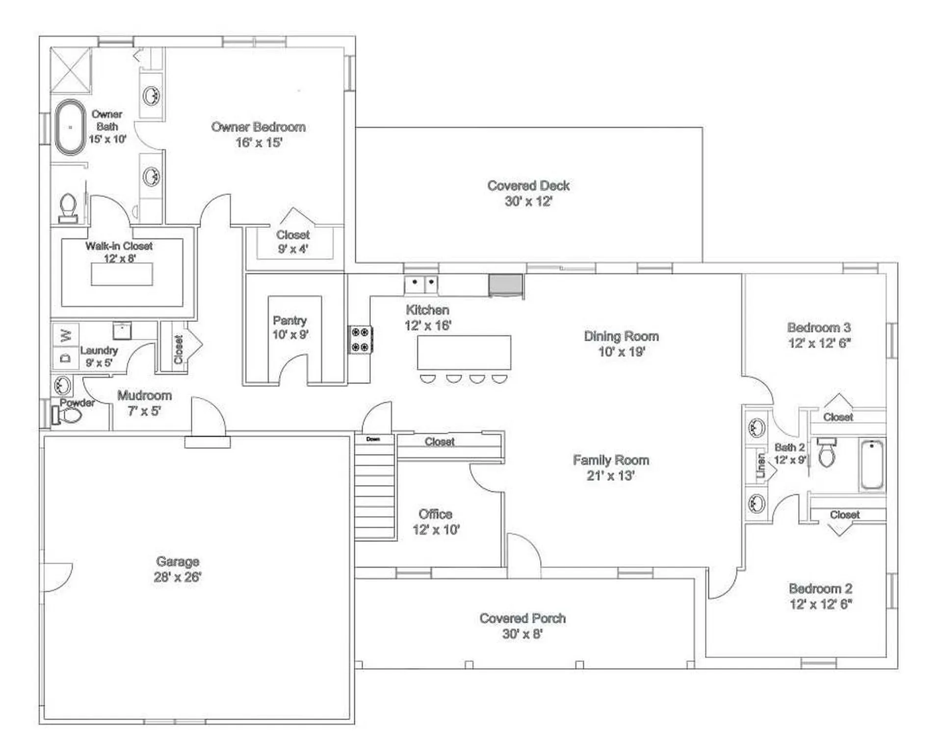
Energy Independence! This to-be-built new home by Energy Vision Homes will be a certified U.S. Department of Energy Zero Energy Ready Home. Through a combination of continuous filtered fresh air, low-emission building products, and stringent moisture control measures the home will also be a U.S. EPA Indoor airPlus Home. This healthy, all-electric home, and your electric vehicle, can be powered by ground-mounted solar photovoltaic panels. No Utility bills! The home features hardwood or tile floors throughout, owner's suite with soaking tub and tile shower, and a bright kitchen with a large walk-in pantry. Finishes include granite countertops, solid wood cabinetry, and composite decking on the covered front porch and on the covered rear deck. The building lot is in the much sought after Whitetail Meadows subdivision, which is less than three miles from Amherst town center and next to the Souhegan Woods Golf Club. The house shown is customizable and can be changed to other design.

Listing Tools

Property Details of Lot 1 County Road

Listed by Jason Saphire of www.HomeZu.com

Map Location

Driving Directions

Broker Reciprocity 

Copyright 2025 PrimeMLS, Inc. All rights reserved. This information is deemed reliable, but not guaranteed. The data relating to real estate displayed on this display comes in part from the IDX Program of PrimeMLS. The information being provided is for consumers’ personal, non-commercial use and may not be used for any purpose other than to identify prospective properties consumers may be interested in purchasing. Data last updated November 10, 2025 5:10 PM EST

 

Hi there! How can we help you?

Contact us using the form below or give us a call.

Send Us A Message:

I agree to receive marketing and customer service calls and text messages from Proctor & Greene Real Estate. To opt out, you can reply 'stop' at any time or click the unsubscribe link in the emails. Consent is not a condition of purchase. Msg/data rates may apply. Msg frequency varies. Privacy Policy.

Do not fill in this field:

This site is protected by reCAPTCHA and the Google Privacy Policy and Terms of Service apply.

Hi there! How can we help you?

Contact us using the form below or give us a call.

Send Us A Message:

Do not fill in this field:

This site is protected by reCAPTCHA and the Google Privacy Policy and Terms of Service apply.

Hi there! How can we help you?

Contact us using the form below or give us a call.

Send Us A Message:

Do not fill in this field:

This site is protected by reCAPTCHA and the Google Privacy Policy and Terms of Service apply.

Do not fill in this field:

This site is protected by reCAPTCHA and the Google Privacy Policy and Terms of Service apply.

Do not fill in this field:

This site is protected by reCAPTCHA and the Google Privacy Policy and Terms of Service apply.

Do not fill in this field:

This site is protected by reCAPTCHA and the Google Privacy Policy and Terms of Service apply.

$

Do not fill in this field:

This site is protected by reCAPTCHA and the Google Privacy Policy and Terms of Service apply.