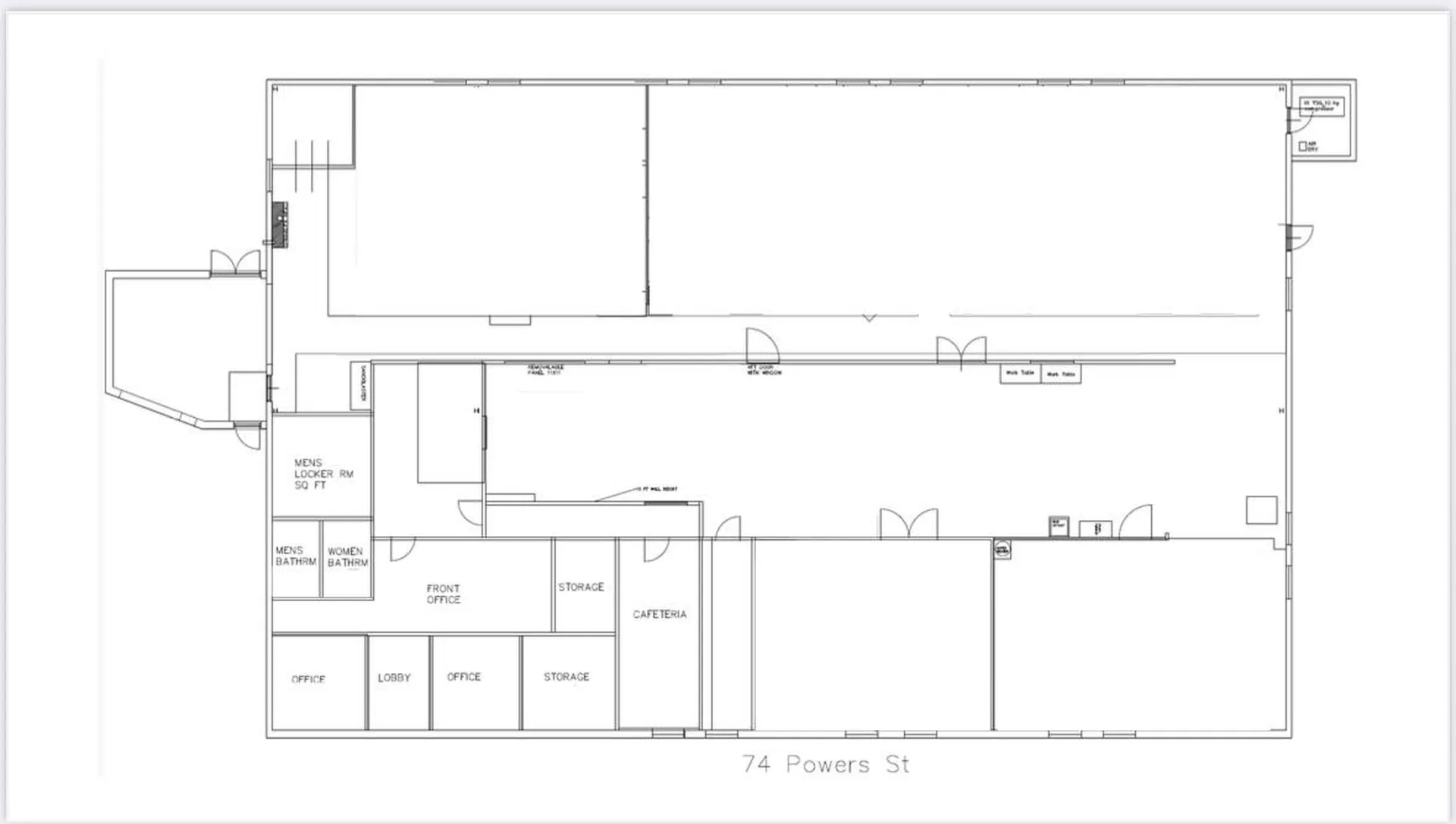
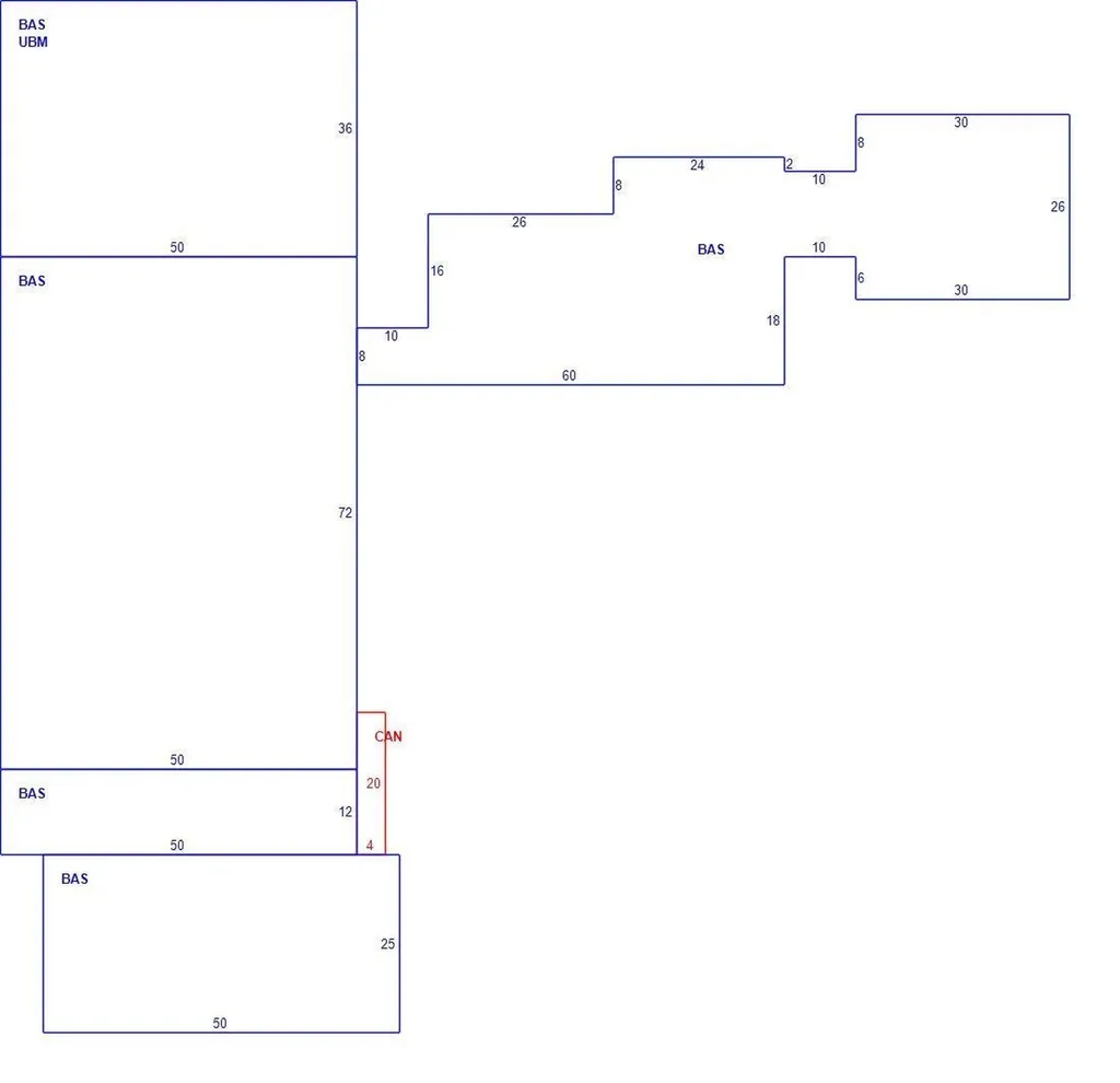
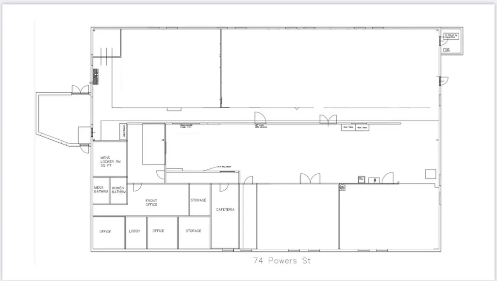
Prime Investment Opportunity in Milford, NH! An exceptional chance to acquire three freestanding buildings totaling 27,206 SF on a single parcel-ideal for investors, owner users, or businesses planning to expand over time. This versatile property offers a blend of manufacturing, office, and warehouse space, allowing for multiple income streams or flexible operational use. Property Breakdown: Total Space: 27,206 SF; Manufacturing/Office: 22,286 SF; Warehouse: 4,920 SF 70 Powers Street - 11,422 SF A two level building featuring 9,622 SF of office and manufacturing space on the main floor, plus 1,800 SF of walk out basement space equipped with an overhead door-ideal for storage, light manufacturing, or loading needs. 74 Powers Street - 10,864 SF A single story office and manufacturing building with a loading dock, offering efficient workflow and easy access for deliveries. 70 B Powers Street - 4,920 SF A metal sided, unheated warehouse providing valuable storage or auxiliary operational space. This building is currently owner occupied, and the stated annual income does not include potential revenue from this structure. Serviced by municipal water and sewer. Situated on 2.68 acres of industrial zoned land. Conveniently located off Nashua Street near the Milford Oval with easy access to Routes 101 and 13, and less than 10 miles from Route 3. This property offers a rare combination of location, flexibility, and scale-perfect for businesses looking to grow or investors seeking a strong, multi building asset.

Listing Tools

Property Details of 74 Powers Street

Property Details

Interior Features

Listed by Alyssum Proctor-Russell of Proctor and Greene Real Estate

Map Location

Driving Directions

Broker Reciprocity 

Copyright 2026 PrimeMLS, Inc. All rights reserved. This information is deemed reliable, but not guaranteed. The data relating to real estate displayed on this display comes in part from the IDX Program of PrimeMLS. The information being provided is for consumers’ personal, non-commercial use and may not be used for any purpose other than to identify prospective properties consumers may be interested in purchasing. Data last updated May 20, 2026 4:39 PM EDT

 

Hi there! How can we help you?

Contact us using the form below or give us a call.

Send Us A Message:

I agree to receive marketing and customer service calls and text messages from Proctor & Greene Real Estate. To opt out, you can reply 'stop' at any time or click the unsubscribe link in the emails. Consent is not a condition of purchase. Msg/data rates may apply. Msg frequency varies. Privacy Policy.

Do not fill in this field:

This site is protected by reCAPTCHA and the Google Privacy Policy and Terms of Service apply.

Hi there! How can we help you?

Contact us using the form below or give us a call.

Send Us A Message:

Do not fill in this field:

This site is protected by reCAPTCHA and the Google Privacy Policy and Terms of Service apply.

Hi there! How can we help you?

Contact us using the form below or give us a call.

Send Us A Message:

Do not fill in this field:

This site is protected by reCAPTCHA and the Google Privacy Policy and Terms of Service apply.

Do not fill in this field:

This site is protected by reCAPTCHA and the Google Privacy Policy and Terms of Service apply.

Do not fill in this field:

This site is protected by reCAPTCHA and the Google Privacy Policy and Terms of Service apply.

Do not fill in this field:

This site is protected by reCAPTCHA and the Google Privacy Policy and Terms of Service apply.

$

Do not fill in this field:

This site is protected by reCAPTCHA and the Google Privacy Policy and Terms of Service apply.